57 St Andrews WayEllijay, GA 30536
Due to the health concerns created by Coronavirus we are offering personal 1-1 online video walkthough tours where possible.




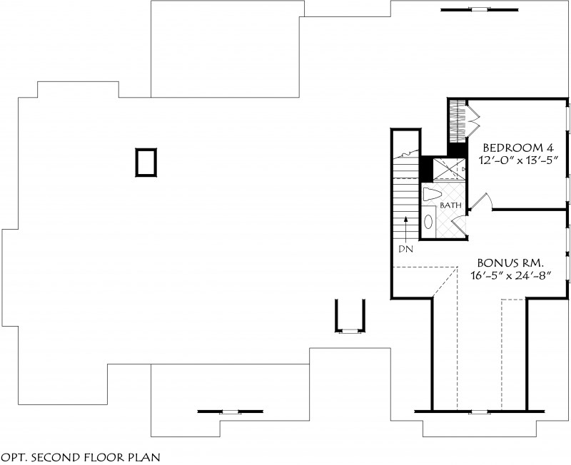
Adorable modern mountain cottage plan TO BE BUILT in the prestigious Georgian Highlands on a 3-acre North Georgia property with gentle terrain and seasonal views. This new construction home will be built by Precision Custom Home Builders, a trusted North Georgia builder known for quality craftsmanship and thoughtful design. As a true custom builder, this builder provides flexibility to modify the plan, adjust layouts, or personalize finishes. The exterior features brickwork, mountain-style gables, and a porch with rustic timber columns. Inside, a vaulted great room with beamed ceiling and fireplace flows to the kitchen and dining with island, pantry, and cabinetry. The owner's suite includes dual vanities and a walk-in closet with direct laundry access. Covered porches extend the living space outdoors, and an optional upstairs bonus with full bath provides room for a fourth bedroom, office, or guest retreat. The homesite rises gently from the road, creating natural privacy as the land slopes upward. In summer the forest canopy surrounds the land, while fall and winter open to seasonal mountain views. The setting feels private yet is only half a mile from the rear gate with quick access to Ellijay's orchards, wineries, hiking trails, and the Blue Ridge Mountains. Rentals are not permitted, preserving the residential character. HOA fees are reasonable, and the location is central—20–25 minutes to Jasper or Ellijay. This is a preconstruction listing. Buyers may tailor the design before construction begins. Renderings are representative only. Staged interior images/renderings do not show actual furnishings, dcor, or materials. If you love the finishes, ask about available options at your construction appointment. Terrain and satellite imagery are for reference only and not a survey. Exterior home design, location, and vista pruning must be approved by the HOA Architectural Committee. Build time is projected at approximately 12 months after contract closing.
| 2 months ago | Listing updated with changes from the MLS® | |
| 2 months ago | Listing first seen on site |
Listing data provided by Northeast Georgia Board of Realtors. Information deemed reliable but not guaranteed. Last checked: 2025-10-27 11:37 AM UTC

Did you know? You can invite friends and family to your search. They can join your search, rate and discuss listings with you.