93 Worley DriveJasper, GA 30143
Due to the health concerns created by Coronavirus we are offering personal 1-1 online video walkthough tours where possible.




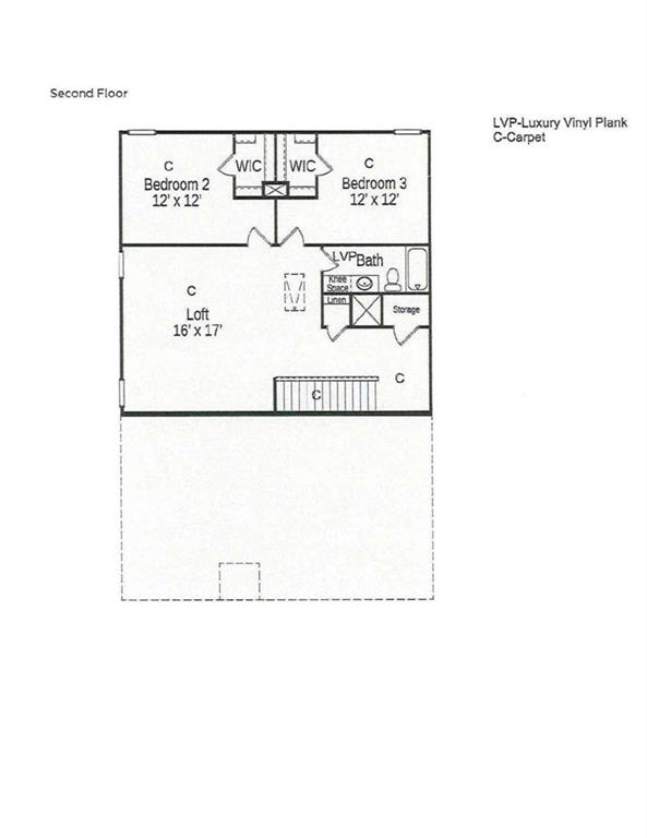
Nestled in the picturesque foothills of the North Georgia Mountains, Worley Preserve is a charming single-family home community in Jasper, Georgia, developed by Smith Douglas Homes and comprising 162 units built between 2021 and 2023. Perfectly positioned between Jasper and Ball Ground off Highway 515, this Pickens County neighborhood offers residents a serene escape with convenient access to quaint downtown shops, Eagle’s Rest Park, local vineyards, mountain views and nature parks and trails. This home features a master suite on the main floor for easy accessibility and single-level living convenience and boasts an open floor plan that seamlessly connects the living and kitchen areas, promoting effortless flow for modern living, entertaining, and family gatherings. The second floor includes a spacious loft area that serves as a versatile bonus space for a home office, media room, exercise room or simply a great relaxation spot—complete with excellent views of the surrounding mountains from upstairs vantage points....check out the photo of the sunset. Oh! That loft room’s perfect for a quick flip into a fourth bedroom—just add a door, closet and wall, and boom, instant extra bedroom for that growing family without touching the footprint. This lot is a true premium—backs to nothing PLUS a view of the mountains, no houses across the street either, so you get that rare open feel without sacrificing privacy. The architecture already pops with killer curb appeal: clean lines, big gabled roofs, and that modern-yet-timeless vibe that turns heads. The Community Association provides low-maintenance living by including yard and lawn maintenance, allowing residents to enjoy more free time without the hassle of mowing or upkeep. This combination of thoughtful design features and included services makes Worley Preserve an appealing choice that blends affordability with the natural beauty of the region.
| yesterday | Listing first seen on site | |
| yesterday | Listing updated with changes from the MLS® |
Listings identified with the FMLS IDX logo come from FMLS and are held by brokerage firms other than the owner of this website and the listing brokerage is identified in any listing details. Information is deemed reliable but is not guaranteed. If you believe any FMLS listing contains material that infringes your copyrighted work, please click here to review our DMCA policy and learn how to submit a takedown request.
© 2017-2026 First Multiple Listing Service, Inc.

Did you know? You can invite friends and family to your search. They can join your search, rate and discuss listings with you.